м.Київ, вул.Кримського,4А 📞+38(097)340-50-74 fs-bud@ukr.net,fs-bud.com
Хостинг от
uCoz
ПРОЕКТУВАННЯ, ВИРОВНИЦТВО ТА МОНТАЖ СКЛАДНИХ ПРОСТОРОВИХ КОНСТРУКЦІЙ
Зимові сади з алюмінієвого профілю
Наші об'єкти (фото виконаних робіт)
Послуги 3D візуалізації складних конструкцій
Послуги з розробки проектів (КМ, КМД)
Проекту навісного вітража (КМ, КМД)
Проект зенітного ліхтаря (КМ, КМД)
Програмне забезпечення - Optimize, Statika
Рейтинг
OKNA.ua
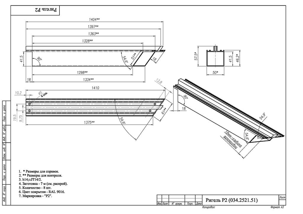
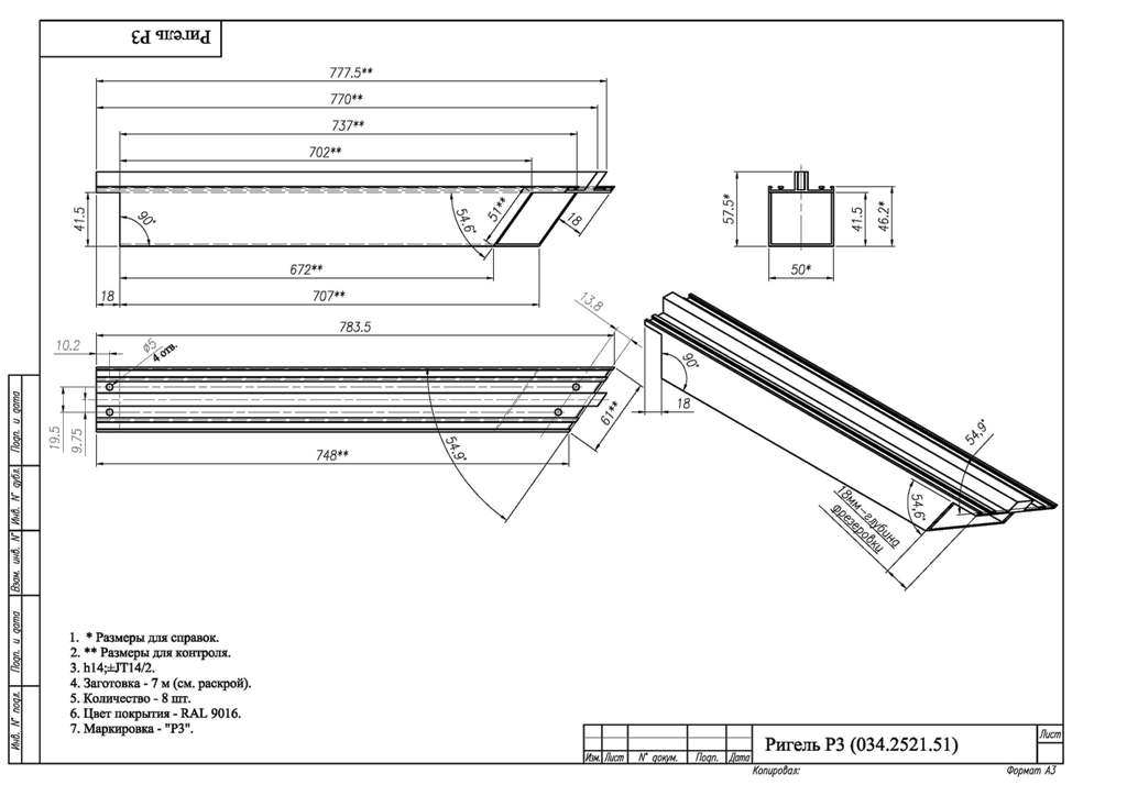
ПРИМЕР ВЫПОЛНЕНИЯ ПРОЕКТА ЗЕНИТНОГО ФОНАРЯ
Чертежи в производство (КМД)
Страницы
1...18
19...27
Страницы
1...18
19...27